Die Einzelhandelsflächen

Einheit Fläche in m² Ausstattung
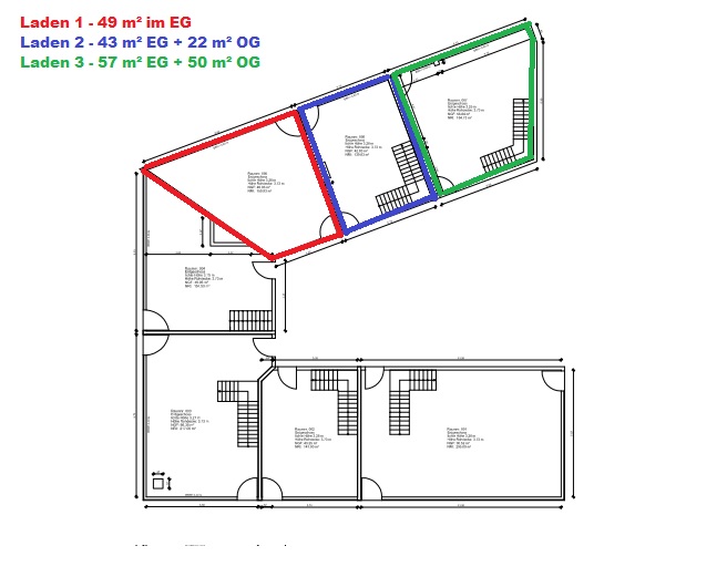
Laden 2
65

Fläche im EG + OG /
5,70 m breites Schaufenster direkt zum ZOB

Laden 3
107

Flächen im EG und OG /
8,70 m breites Schaufenster zum Laubengang

Leider können wir Ihnen derzeit keine freien Ladenflächen anbieten.